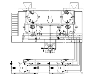
Sunkaier - Model PEWAX -Polyethylene Wax Refinery Plant
PE waxes, which are a by-product of ethylene polymerization, have a better molecular weight distribution than directly synthesized polyethylene waxes. These polyethylene waxes are obtained by separating low molecular weight polyethylene cuts using hexane solvent. In this method of production, other processes can be added to reduce the fluctuations of properties, for example, vacuum distillation to PE WAX with a narrower molecular weight can be obtained, or copolymerization of ethylene with other olefins such as propylene, Butane, and hexane can extend the range of available properties of polyethylene waxes.
Currently, there are three main methods for the production of polyethylene wax.
First, by polymerization.
Second, by degradation of high polymers.
Third, by separation from byproduct in the synthesis process of polyethylene,
The polyethylene wax melting point is relatively high. PE wax dissolves in solvent at high temperature (about 100-140 ?), precipitates when cooled to room temperature, and exists in the coating in the form of microcrystals. Because of its thixotropy, it is beneficial to the storage of the coating, and after the coating is applied, it can migrate to the surface layer of the coating film during the volatilization process of the solvent, and finally form a "waxed" surface layer with other components of the coating. The effect of PE wax depends on the following factors: The variety and specification of PE wax, the affordable pe wax price, the final particle size, the ability to migrate to the surface of the coating film and the composition of the coating, the polyethylene wax properties of the substrate to be coated, and the method of construction and application.
there are three main methods for the production of polyethylene wax.
-
Polyethylene wax can be synthesized through the low-polymerization reaction of ethylene monomers, such as polyethylene wax synthesized by free radical low-polymerization.
-
Polyethylene wax can be prepared by degradation of high polymers.
-
Polyethylene wax can be obtained as a byproduct in the synthesis process of polyethylene, such as polyethylene wax separated from the byproduct of high-pressure polyethylene synthesis.
Byproducts obtained from the reaction of ethylene polymerization to produce polyethylene can be used to recover polyethylene wax in the mixture of low molecular weight components and solvents.
1, Removing solvents and initiatorsRemoving solvents and initiators from the byproducts of the polyethylene plant.
2, Purification by solvent separation or distillationThe molecular weight distribution of the product remains wide, which limits its application field and requires further purification through solvent separation.
The polyethylene wax products derived from these byproducts usually contain molecules with a relative molecular weight of about 1000, so their physical properties such as mechanical strength and heat resistance are lower than those of polyethylene wax produced by ethylene polymerization.
