- Home
- Companies
- We Care 4 Air Ltd.
- Services
- Air Quality Station Installation and ...
Air Quality Station Installation and Project Management Services
We are very experienced in installing new Air Quality Stations. You can rest assured that we will project manage the installation for you, giving you peace of mind that the site will be finished to a high standard, on time and in budget. All cabinets are fitted out to your bespoke specification in our workshop, fully tested, and then dismantled and packed safely for transportation to site. We will liaise with all 3rd party providers including Highways and your electricity supplier to ensure a smooth, hassle-free process.
This is a 3D render of an air quality station we have installed in a variety of train stations throughout the UK, on behalf of the Rail Safety and Standards Board and AECOM.
The contract was for the installation of 5 brand new air quality stations including an Aeris AE2041 NOx analyser and the SWAM Dual Channel measuring PM 10 and PM 2.5 simultaneously
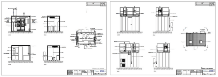
Technical drawings for a recent customer:
These are some technical drawings of an air quality monitoring cabinet (external and internal).

