- Home
- Companies
- ERG (Air Pollution Control) Ltd
- Products
- ERG - Bio Trickling Filters
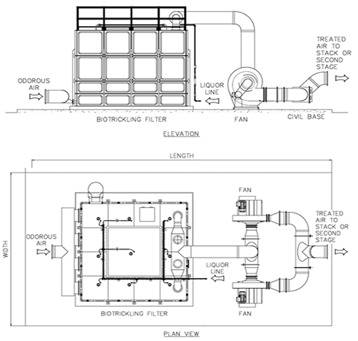
ERG - Bio Trickling Filters
A specially selected cocktail of bacteria, enzymes and nutrients are pre-seeded into the bio-trickling filter to ensure there is a rapid development of the odour neutralising bacteria which colonise the media bed. The bacteria digest the odour causing compounds, which typically include H2S, mercaptans, organic sulphides, soluble VOCs and ammonia. The optimised environment for bacterial activity is maintained by controlled irrigation with filtered final effluent, or water dosed with low level nutrients if no final effluent is available.
Designed and built to BS 4994 or BS EN 13121 and fully compliant with WIMES 8.05, our bio-trickling filter systems offer assured performance and competitive costing.
All our systems are custom-designed for the odour control duty required, and include installation of:
- Vessel and biomedia, with optional access structure, non-slip surface and handrails (for walk-on, rectangular vessels)
- Irrigation system including strainers, instrumentation and dosing package if required
- Air extraction fans and ductwork
- Electrical control panel
- Downstream carbon filter for enhanced performance
The key advantages of ERG’s bio-trickling filters are:
- All systems are bespoke and designed to match the system requirements.
- The standard range of cylindrical vessels is used for flowrates up to 3,000 m3/hr and modular sectional tanks for flowrates upto 25,000 m3/hr or larger if required.
- Options for including pumice stone media or structural plastic media.
- The inert pumice stone biomedia lasts for 20 years. The pumice does not decay or suffer from acidification or compaction ensuring contamination removal remains constant for the life of the filter.
- The units are highly compact with a small footprint.
- They are able to reliably treat high levels of contamination (over 200ppm H2S) and achieve removal efficiencies of >99% H2S removal and >95% odour removal in a single tower.
- The operating costs are low when compared with other odour removal technologies.
- The vessels are designed to allow easy maintenance access to the spray nozzles and inspection of the media. Media replacement is achieved using removable hatches.
- The absorption of the contamination into the bio-film around the media and subsequent biological aerobic degradation, forms a stable (usually acidic) effluent which is released to drain. The bio-trickling filter is optimised to ensure an acceptable pH in the effluent stream.
- If filtered final effluent is not available, ERG can provide a nutrient dosing system.




